Offers Over £128,500 - Under Offer


  • Immaculate Terrace House
  • Three Double Bedrooms
  • Spacious Accommodation Throughout
  • Modern Fitted Kitchen & Adjoining Dining Room
  • Elegant Four Piece Family Bathroom
  • Large Parking Area
  • Children's Play Park Close By
  • Close to Local Amenities & Public Transport Links

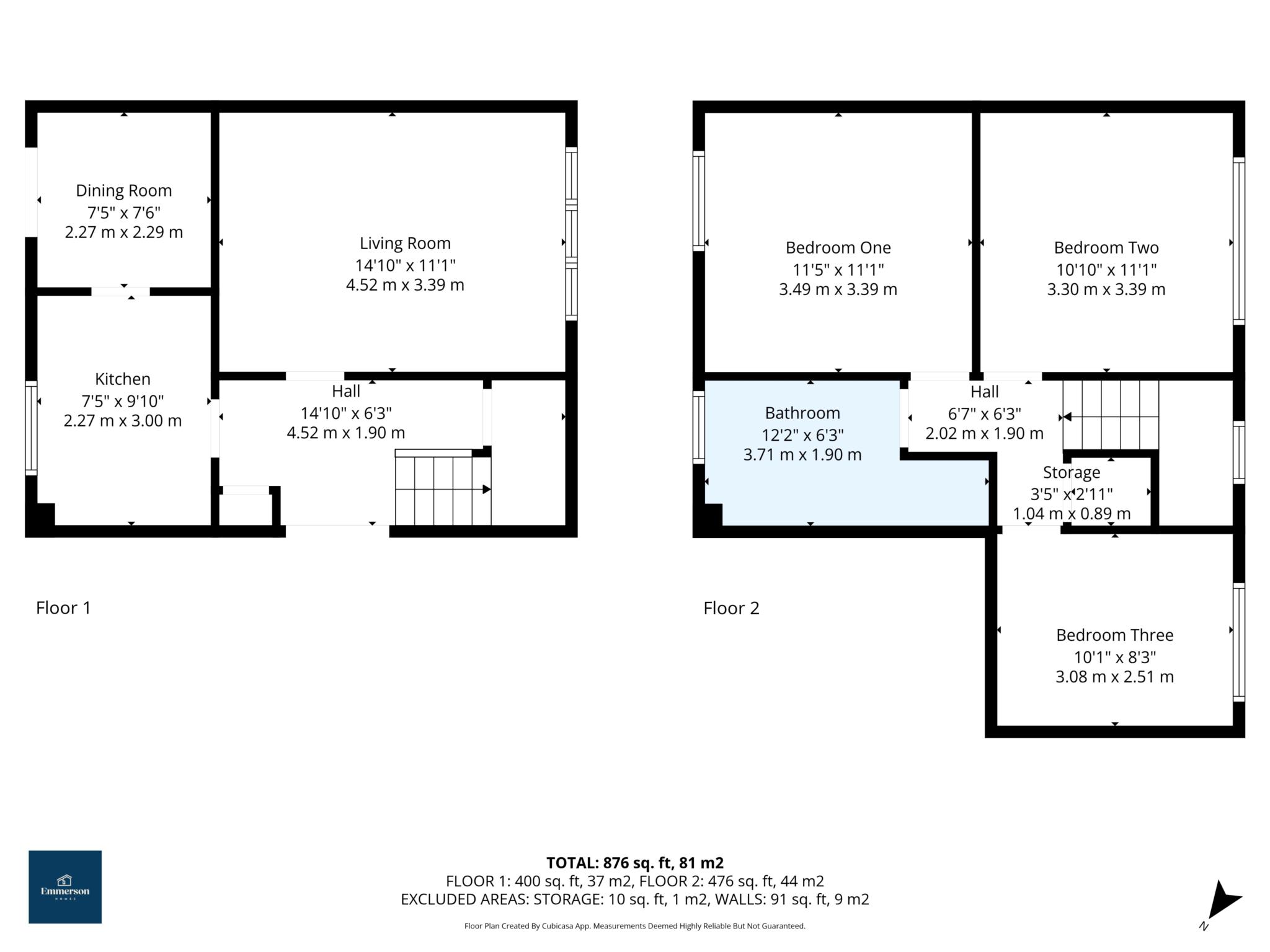
Emmerson Homes are delighted to market this immaculate three bedroom mid terrace house situated within the sought after residential area of Sanderling Place, Spateston. Entrance hallway, lounge, fully fitted kitchen, dining room, three double bedrooms and four piece family bathroom. Appealing to young and growing families alike.

The accommodation comprises a reception hall with a storage cupboard for the electrics and also large under stairs cupboard. The spacious front facing lounge with open views allows natural light to flood the room. The fully fitted kitchen which offers a good selection of floor and wall mounted storage units as well as a integrated oven, hob and hood, fridge and freezer. The dining room is rear facing with French doors leading to the rear garden.

The upper accommodation comprises three double bedrooms and family bathroom. All bedrooms are bright and spacious double rooms. Also on the upper landing there is a large cupboard and further storage is accessed via a hatch to the loft. Finally, the 4 piece family bathroom which consists a coordinating white suite with wet walls, bath, shower cubicle, WC and WHB.

The property further benefits from double glazing and gas central heating. There is a well maintained garden to the front and the rear garden has a decked area with artificial grass and is enclosed for added privacy and safety.There is ample parking to the side of the property.

This would be an excellent purchase for a family due to its popular locale. Viewing is highly advised to fully appreciate this home which is located near to local schooling and transport links.

Renfrewshire Council, Tax Band C.

EPC Rating C.

Living in Johnstone offers a charming and vibrant community experience. Located in the heart of Renfrewshire, this historic town combines the best of both worlds, a residential area and the convenience of nearby amenities. The town offers a range of local shops, restaurants, and leisure facilities, ensuring that residents have everything they need within easy reach. Nature lovers will appreciate the nearby parks and green spaces, providing ample opportunities for outdoor activities and relaxation. Furthermore, Johnstone benefits from excellent transport links, including a railway station, making it convenient for commuting to nearby towns and cities.

We are your local estate agents based in the heart of Renfrewshire. Whether you're selling or buying, you're in good hands with us. Feel free to submit a contact form and get in touch with your local property experts.

MONEY LAUNDERING REGULATIONS: Intending purchasers will be asked to produce identification documentation at a later stage and we would ask for your cooperation in order that there will be no delay in agreeing the sale.



Reception Hallway - 14'10" (4.52m) x 6'3" (1.91m)

Lounge - 14'10" (4.52m) x 11'1" (3.38m)

Kitchen - 7'5" (2.26m) x 9'10" (3m)

Dining Room - 7'5" (2.26m) x 7'6" (2.29m)

Bedroom One - 11'5" (3.48m) x 11'1" (3.38m)

Bedroom Two - 10'10" (3.3m) x 11'1" (3.38m)

Bedroom Three - 10'1" (3.07m) x 8'3" (2.51m)

Bathroom - 12'2" (3.71m) x 6'3" (1.91m)



Notice
Please note we have not tested any apparatus, fixtures, fittings, or services. Interested parties must undertake their own investigation into the working order of these items. All measurements are approximate and photographs provided for guidance only.

Floor Plan
EER Chart

The Energy-Efficiency Rating is a measure of a home's overall efficiency. The higher the rating, the more energy-efficient the home is, and the lower the fuel bills are likely to be.

EIR Chart

The Environmental Impact Rating is a measure of a home's impact on the environment in terms of carbon dioxide (C02) emissions - the higher the rating, the less impact it has on the environment.

Utility Supply Type
Electric Mains Supply
Gas Mains Supply
Water Mains Supply
Sewerage Mains Supply
Broadband None
Telephone None

Other Items Description
Heating Gas Central Heating
Garden/Outside Space Yes
Parking No
Garage No

Broadband Coverage Highest Available Download Speed Highest Available Upload Speed
Standard 5 Mbps 0.7 Mbps
Superfast 80 Mbps 20 Mbps
Ultrafast 1000 Mbps 1000 Mbps

Mobile Coverage Indoor Voice Indoor Data Outdoor Voice Outdoor Data
EE Likely No Signal Enhanced Enhanced
Three Likely Likely Enhanced Enhanced
O2 Likely Likely Enhanced Enhanced
Vodafone Likely Likely Enhanced Enhanced

Broadband and Mobile coverage information supplied by Ofcom.


marker icon